info@sefineteknik.com
+90 312 3947092
HAKKIMIZDA
TESTERELER
BİMETAL ŞERİT TESTERE
DEMİR/ÇELİK ÜRÜNLERİ
RULO VE LEVHA SACLAR
PROFİLLER
NPI
NPU
HEA
HEB
HEM
IPE
BORULAR
SANAYİ BORULARI
ÇELİK ÇEKME BORULAR
KUTU PROFİLLER
KÖŞEBENTLER
ANKRAJLAR
STUD KAYNAK SAPLAMASI
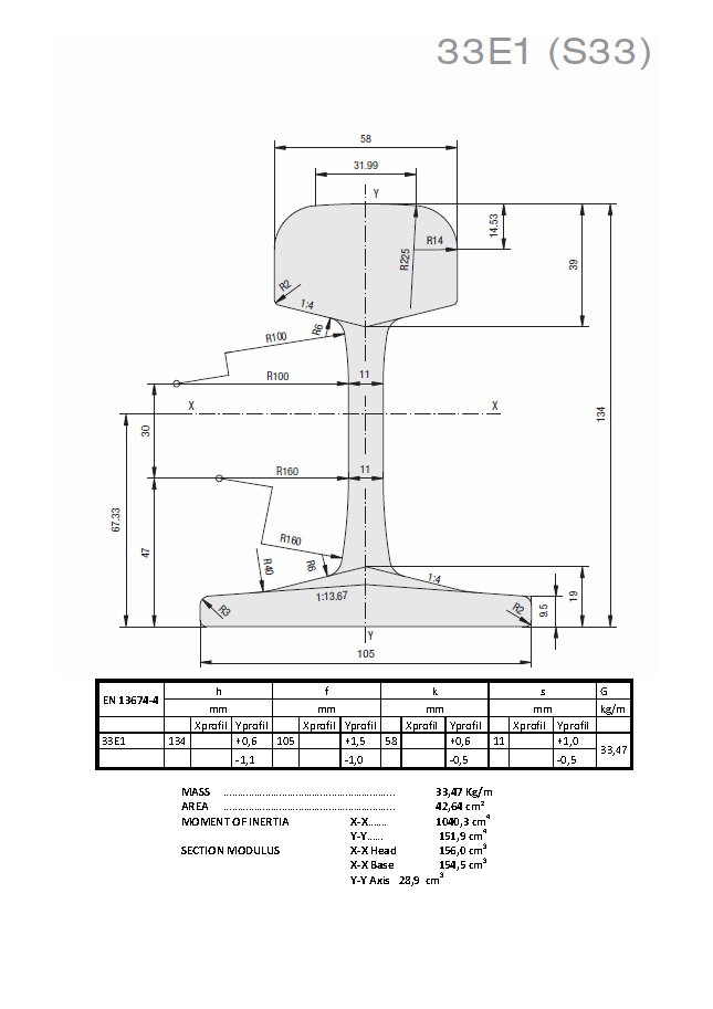
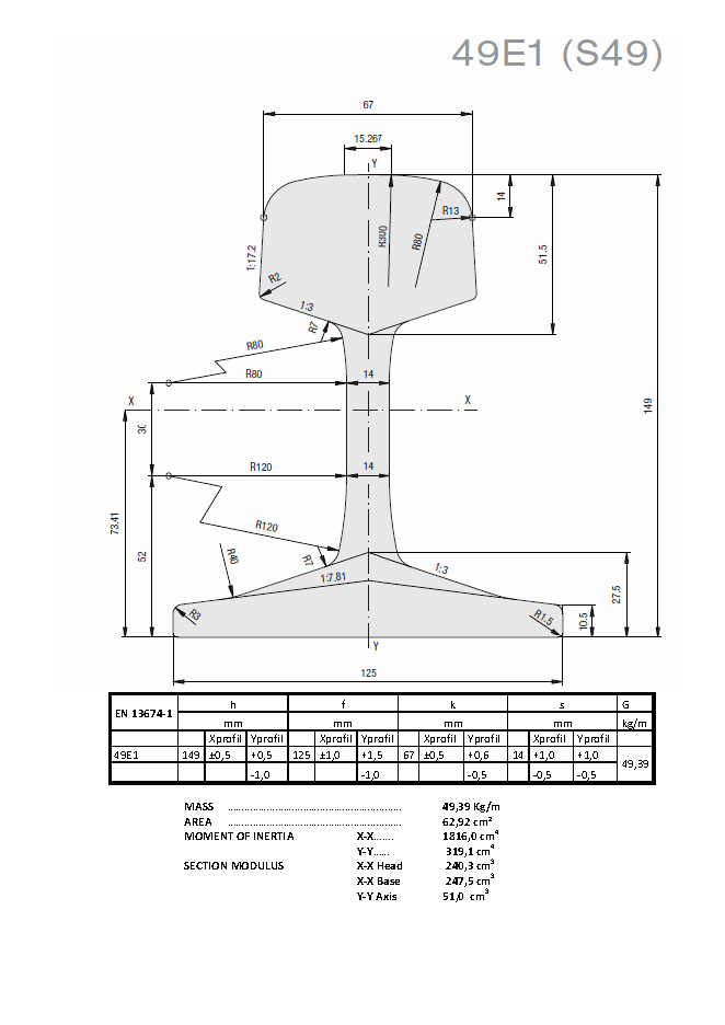
RAY DEMİRİ
ULUSLARARASI NORM
İLETİŞİM
Ray
Demiri